Einfamilienwohnhaus mit ausbaubarem Dachgeschoss und Doppelgarage, Göppingen
73035 Göppingen, Einfamilienhaus zum Kauf
Kontaktdaten
-
NameHerr Frank Blickle
-
FirmaBlickle&Stölzle Immo GmbH
-
AnschriftVordere Mühlstraße 40
73035 Göppingen -
E-Mail
-
Telefon
-
Fax+49 7161 23339
Objektdaten
-
Objekt-IDBS1764
-
ObjekttypenEinfamilienhaus, Haus
-
Adresse73035 Göppingen
-
Wohneinheiten1
-
Wohnfläche ca.178,67 m²
-
Grundstück ca.848 m²
-
Zimmer4
-
Badezimmer1
-
Separate WC2
-
KücheEinbauküche
-
HeizungsartZentralheizung
-
Wesentlicher EnergieträgerÖl
-
Baujahr1970
-
Garagenstellplätze2 Stellplätze
-
Käuferprovision3,57 % v. Netto-VKPreis (incl. MwSt)
-
Kaufpreis695.000 EUR
Ausstattung / Merkmale
- ✓ Badewanne
- ✓ Balkon/Terrasse Süd
- ✓ Dusche
- ✓ Einbauküche
- ✓ Fliesenboden
- ✓ Garage
- ✓ Separates WC
- ✓ Tageslichtbad
Energieausweis
-
EnergieausweistypBedarfsausweis
-
Gültig bis25.07.2025
-
GebäudeartWohngebäude
-
Baujahr lt. Energieausweis1970
-
Wesentlicher EnergieträgerÖl
-
Endenergiebedarf409,20 kWh/(m²·a)
-
EnergieeffizienzklasseH
Objektbeschreibung
Beschreibung
In attraktiver und ruhiger Lage von Göppingen-Faurndau, im beliebten Baugebiet Haier, steht dieses freistehende Einfamilienhaus aus dem Jahr 1971. Das gepflegte Wohnhaus befindet sich auf einem großzügigen, nach Süden ausgerichteten Grundstück mit 848?m² Fläche und bietet ideale Voraussetzungen für Familien, Paare oder kreative Köpfe, die ein Zuhause nach ihren Vorstellungen gestalten möchten.
Das Erdgeschoss verfügt über einen überdachten Eingangsbereich mit Windfang sowie eine geräumige Diele mit Garderobe. Von dort aus gelangt man in die Küche, das helle Esszimmer mit Zugang zur Terrasse, das Wohnzimmer sowie in den Schlafzimmerbereich. Dieser besteht aus einem Elternschlafzimmer mit Ankleide, einem Kinderzimmer und einem Badezimmer. Im gesamten Erdgeschoss ist hochwertiger Solnhofener Naturstein in hellem Farbton verlegt.
Im Dachgeschoss wurde bereits ein Zimmer ausgebaut, zusätzlich gibt es eine separate Toilette. Der große Bühnenraum bietet weiteres Ausbaupotenzial und kann bei Bedarf zu zusätzlichem Wohnraum umgebaut werden – ideal z.?B. als Studio, Homeoffice oder Gästezimmer.
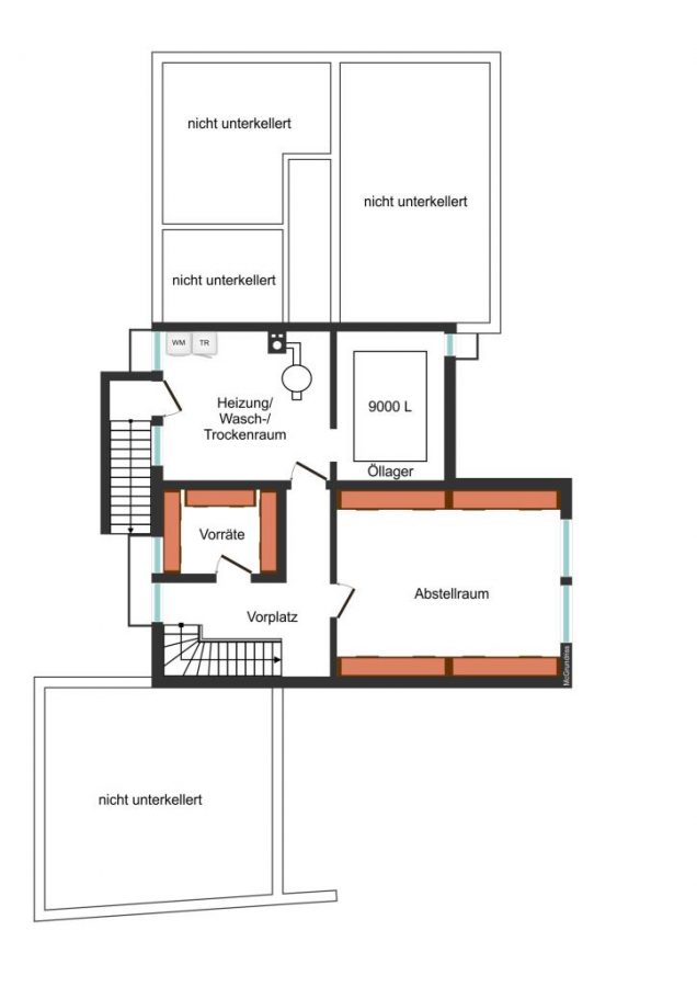
Das Untergeschoss beherbergt den Heiz- und Trockenraum, einen Waschraum, ein Öl-Lager sowie einen großzügigen beheizten Hobbyraum. Von hier aus führt ein Ausgang mit Seitentreppe direkt in den Garten.
Der Außenbereich bietet neben einer sonnigen Terrasse auch einen gepflegten Garten mit viel Platz zur individuellen Nutzung. Eine große Doppelgarage ist ebenfalls vorhanden. Die Ausstattung des Hauses ist baujahrspezifisch – eine solide Basis für eine Modernisierung nach Ihren Wünschen.
Dieses Wohnhaus in gewachsener, familienfreundlicher Umgebung bietet viel Potenzial zur Weiterentwicklung. Nutzen Sie die Gelegenheit und machen Sie dieses Haus zu Ihrem Projekt!
Sonstiges
Unser Angebot ist freibleibend und unverbindlich. Die Objektdaten stammen vom Anbieter. Eine Gewähr für die Richtigkeit und Vollständigkeit wird nicht übernommen. Das Angebot ist nur für Sie bestimmt und darf nicht an Dritte weitergegeben werden.
Eine Weitergabe verpflichtet zur Zahlung der Courtage, falls ein Dritter dadurch zum Vertragsabschluss kommt. Die Courtage inkl. Mehrwertsteuer ist bei Abschluss eines Vertrages durch unseren Nachweis oder unserer Vermittlung fällig. Die Kontaktaufnahme zwischen Käufer und Verkäufer ist grundsätzlich über uns einzuleiten. Bei Direktverhandlungen ist auf uns Bezug zu nehmen und uns über das Ergebnis Nachricht zu geben. Soweit keine andere Regelung vereinbart ist, darf eine Innenbesichtigung nur im Einvernehmen mit uns und der Verkäuferseite vorgenommen werden.
Lage
Faurndau hat rund 8.000 Einwohner und liegt im Westen von Göppingen und verfügt über eine gute Verkehrslage mit guten Anbindungen an die B 10 oder mit der Bahn in Richtung Stuttgart und Ulm. Am Ort befinden sich vier Kindergärten und eine Grund- und eine Hauptschule mit Werkrealschule und die freie Waldorfschule. Das Einkaufen für den täglichen Bedarf ist reichlich abgedeckt. Ärzte und Apotheken sind am Ort.
Sie sehen gerade einen Platzhalterinhalt von Google Maps. Um auf den eigentlichen Inhalt zuzugreifen, klicken Sie auf die Schaltfläche unten. Bitte beachten Sie, dass dabei Daten an Drittanbieter weitergegeben werden.
Mehr InformationenDie dargestellte Position der Immobilie ist nur eine ungefähre Angabe.











