Zweifamilienhaus mit großem Westgarten in ruhiger Lage von Eislingen
73054 Eislingen, Einfamilienhaus zum Kauf
Kontaktdaten
-
NameHerr Frank Blickle
-
FirmaBlickle&Stölzle Immo GmbH
-
AnschriftVordere Mühlstraße 40
73035 Göppingen -
E-Mail
-
Telefon
-
Fax+49 7161 23339
Objektdaten
-
Objekt-IDBS1773
-
ObjekttypenEinfamilienhaus, Haus
-
Adresse73054 Eislingen
-
Wohneinheiten2
-
Wohnfläche ca.104,22 m²
-
Grundstück ca.612 m²
-
Zimmer6
-
Badezimmer2
-
Separate WC2
-
HeizungsartOfenheizung
-
Wesentliche EnergieträgerGas, Strom
-
Baujahr1939
-
Garagenstellplatz1 Stellplatz
-
Käuferprovision4,76 % v. Netto-VKPreis (incl. MwSt)
-
Kaufpreis385.000 EUR
Ausstattung / Merkmale
- ✓ Badewanne
- ✓ Balkon/Terrasse West
- ✓ Dusche
- ✓ Garage
- ✓ Separates WC
- ✓ Tageslichtbad
Energieausweis
-
EnergieausweistypBedarfsausweis
-
Gültig bis15.12.2035
-
GebäudeartWohngebäude
-
Baujahr lt. Energieausweis1939
-
Wesentliche EnergieträgerGas, Strom
-
Endenergiebedarf320,00 kWh/(m²·a)
-
EnergieeffizienzklasseH
Objektbeschreibung
Beschreibung
In ruhiger und gewachsener Wohnlage von Eislingen, Vogelgarten, präsentiert sich dieses nette Zweifamilienwohnhaus aus dem Ursprungsbaujahr 1939 als echte Gelegenheit für Käufer mit Ideen und Gestaltungsfreude. Durch die Erweiterungen 1965 im Ober- und Dachgeschoss bietet die Immobilie heute ca. 104 m² Wohnfläche auf einem großzügigen Grundstück von 612 m².
Ein besonderes Highlight ist der nach Westen ausgerichtete Garten: sonnig, weitläufig und mit vielfältigen Möglichkeiten zur individuellen Gestaltung – ob Familiengarten, Ruheoase oder moderner Außenbereich. Hier können Sie Ihren persönlichen Wohntraum verwirklichen. Eine direkt an das Haus angebaute Einzelgarage sorgt für komfortables Parken.
Die Beheizung erfolgt teilweise über Gasöfen sowie Elektronachtspeicheröfen. Renovierungsarbeiten sind einzuplanen und bieten die ideale Chance, das Haus nach eigenen Vorstellungen zu modernisieren und aufzuwerten.
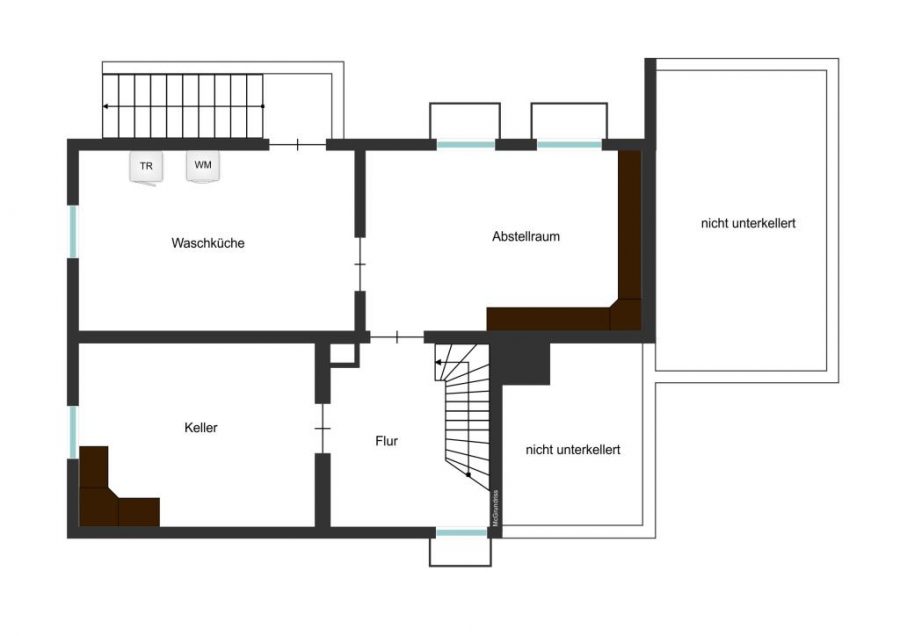
Untergeschoss
Praktische Nutzflächen mit Abstellraum, tiefem Keller sowie einem Waschraum mit direktem Ausgang in den Garten – ideal für Hauswirtschaft, Hobby oder zusätzlichen Stauraum.
Erdgeschoss
Ein Flur mit Zugang zur Garderobe führt in die separate Toilette sowie in das Badezimmer mit Badewanne, Dusche, Handwaschbecken und Elektroheizung. Vom Flur aus erreichen Sie die Küche, das Kinderzimmer, das Schlafzimmer sowie das helle Wohnzimmer.
Obergeschoss
Die Raumaufteilung entspricht dem Erdgeschoss. Zusätzlich bietet das Wohnzimmer Zugang zu einem Balkon mit schönem Blick in den Garten.
Dachgeschoss
Das Dachgeschoss ist über eine Treppe erreichbar. Ein Zimmer ist bereits ausgebaut (ohne Heizung und daher nicht in der Wohnfläche enthalten) und eignet sich hervorragend als Hobby-, Arbeits- oder Gästezimmer. Ergänzt wird das Geschoss durch einen weiteren Bühnenraum.
Diese Immobilie verbindet den Charme eines älteren Hauses mit einem großzügigen Grundstück und großem Entwicklungspotenzial. Ideal für Familien, Mehrgenerationenwohnen oder Käufer, die ein Haus mit Charakter nach eigenen Vorstellungen gestalten möchten.
Sonstiges
Unser Angebot ist freibleibend und unverbindlich. Die Objektdaten stammen vom Anbieter. Eine Gewähr für die Richtigkeit und Vollständigkeit wird nicht übernommen. Das Angebot ist nur für Sie bestimmt und darf nicht an Dritte weitergegeben werden.
Eine Weitergabe verpflichtet zur Zahlung der Courtage, falls ein Dritter dadurch zum Vertragsabschluss kommt. Die Courtage inkl. Mehrwertsteuer ist bei Abschluss eines Vertrages durch unseren Nachweis oder unserer Vermittlung fällig. Die Kontaktaufnahme zwischen Käufer und Verkäufer ist grundsätzlich über uns einzuleiten. Bei Direktverhandlungen ist auf uns Bezug zu nehmen und uns über das Ergebnis Nachricht zu geben. Soweit keine andere Regelung vereinbart ist, darf eine Innenbesichtigung nur im Einvernehmen mit uns und der Verkäuferseite vorgenommen werden.
Lage
Eislingen hat eine sehr gute Infrastruktur die fußläufig erreichbar ist. Durch den Bahnhof und die Anbindung an die B10 sind Esslingen und Stuttgart gut erreichbar. Die Naturnahe Umgebung lädt zu ausgedehnten Spaziergängen und aktiver Erholung ein.
Sie sehen gerade einen Platzhalterinhalt von Google Maps. Um auf den eigentlichen Inhalt zuzugreifen, klicken Sie auf die Schaltfläche unten. Bitte beachten Sie, dass dabei Daten an Drittanbieter weitergegeben werden.
Mehr InformationenDie dargestellte Position der Immobilie ist nur eine ungefähre Angabe.














